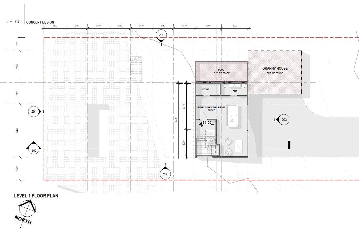
CH 015 Designer home to suit your site
Back to Products