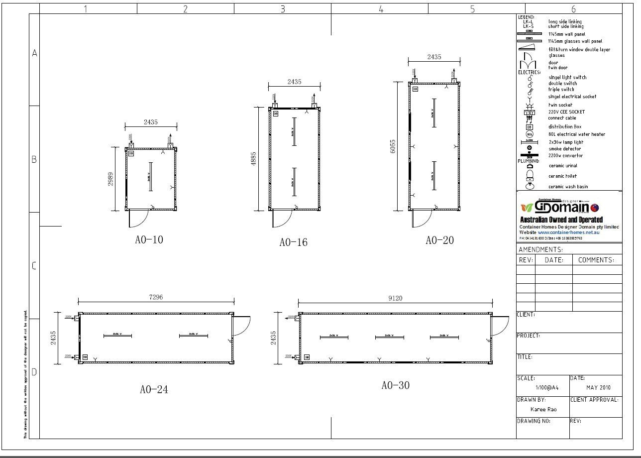
Single Flat Pack $45,000
Back to Products