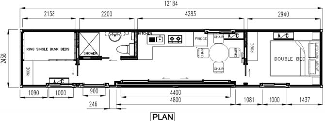
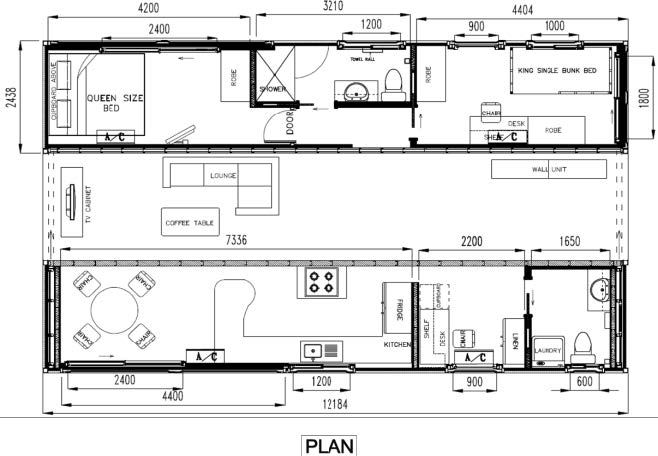
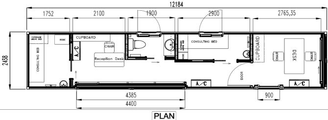
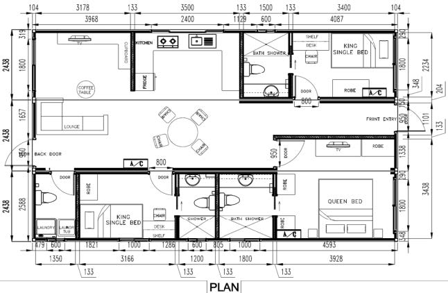
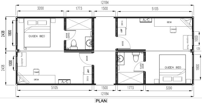
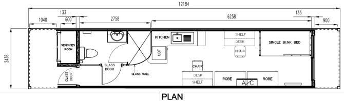
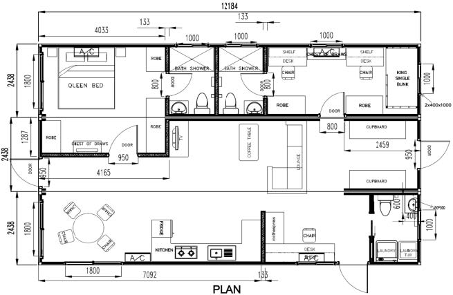
Structure system
1. AZ150, G550, C-89*41*12*0.75mm internal Wall frame, AS1397 Approval (assembled in the factory)
2. Decking structure frame (upper and ground)
3. 80*4.0 SHS post for the steel floor chassis
4. AZ150, G550, Top hat profile for the Container wall ceiling
5. 40' HQ shipping container frame with surface painting
6. Light Steel stair frame for step
7. External corrugated steel decoration wall panel
8. Bolt &screw &cleat etc. accessories
Flooring system
1. (Bedroom &Living &kitchen)5mm SPC with 1mm IXPE soft layer underneath floorboard
2. (Bathroom &laundry)600*300mm floor ceramic/anti-slip
3. (Decking &balcony )25mm WPC board/150x25mm
4. 18mm fiber-cement sheet for floorboard, AS/NZS 2908.2:2000 Approval
5. Self-drilling cross head screw/M4.2X38(Dacromet coating)
6. 30mm layer PU foam spray for container floor underneath
Wall system
1. 30mm layer PU foam spray for container external wall
2. 140mm THK glass wool insulation coil with silver film surface for external and internal wall/R2.5,10kg/m3, AS/NZS 4859.1:02 Approval
3. 12mm gypsum board for internal dry wall/1220x2440mm with putty powder +flash (KNAUF brand)
4. 12mm fiber-cement internal wall board /1220x2440mm, AS/NZS 2908.2:2000 Approval
5. Self-drilling cross head screw/M4.2X38(Dacromet coating)
6. 600x300mm wall ceramic for laundry and bathroom wall/up to ceiling (finished in the factory)
7. Ceramic glue for the wall ceramic
8. Powder coat Aluminum frame window, 5/12/5mm toughen clear glass, with flyscreen, AS2047&AS1288 Approval
9. Powder coat Aluminum frame door, 5/12/5mm toughen clear glass, with flyscreen, AS2047&AS1288 Approval
10. PVC laminated timber internal door with good quality handle and lock,door leaf thickness:40mm/45mm
11. White surface paint skirting board
12. Timber board floor step +steel frame balustrade timber handrail
Ceiling system
1. 10mm gypsum board for internal ground floor container dry ceiling/1220x2440mm surface with putty powder+ flashing (KNAUF brand)
2. 10mm water-proof gypsum board for internal ground floor bathroom laundry ceiling/1220x2440mmsurface with putty powder +flashing (KNAUF brand)
3. Self-drilling cross head screw/M4.2X25(Dacromet coating)
4. 30mm layer PU foam spray for container ceiling
5. 140mm THK glass wool insulation coil with silver film surface for external and internal wall/R2.5,10kg/m3, AS/NZS 4859.1:02 Approval
6. Ceiling corner shadow line
Guardrail system
1. 316 Stainless 40*40mm Steel tube for post top handrail and 6*6mm Día stainless horizontal steel rope
Sanitary and cabinet
1. Ceramic Porcelain toilet with Water-mark certificate
2. SPA Bathtub with Water-mark certificate tap
3. Vanity with mirror shelf, basin Tap in ENS (Water-mark certificate)/S700
4. Floor drain/watermark
5. Towel shelf
6. Paper roller
7. Laundry cabinet
8. Kitchen cabinet
Door panel:16~18mm E1 MDF both sides with Laminated finish.
Handle: Aluminum
Hangable new style soft close hinges
Drawable tandem box with soft closing
Benchtop:20mm thickness quartz (D=600mm)
9. Stainless steel sink with Water-marked certificated faucet /Australia quality
Electrical and plumbing system
1. Electrical fittings/include cable, switch, socket, back box, distribution board, circuit breaker etc. (Australia SAA certificated)
2. Water pipe/Australia Standard Watermark PEX fresh water Pipe with brass fittings, water-mark certificated
3. Down Light/9W LED down light (SAA certificate)































