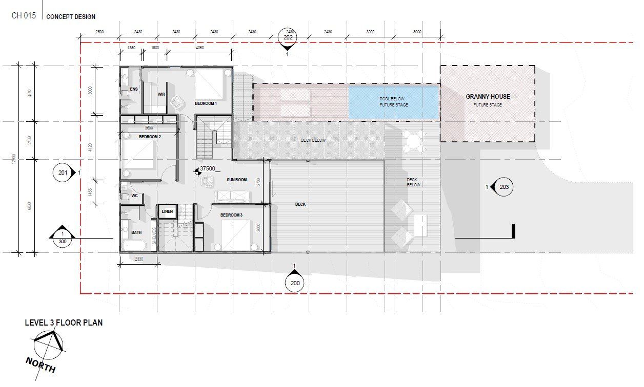
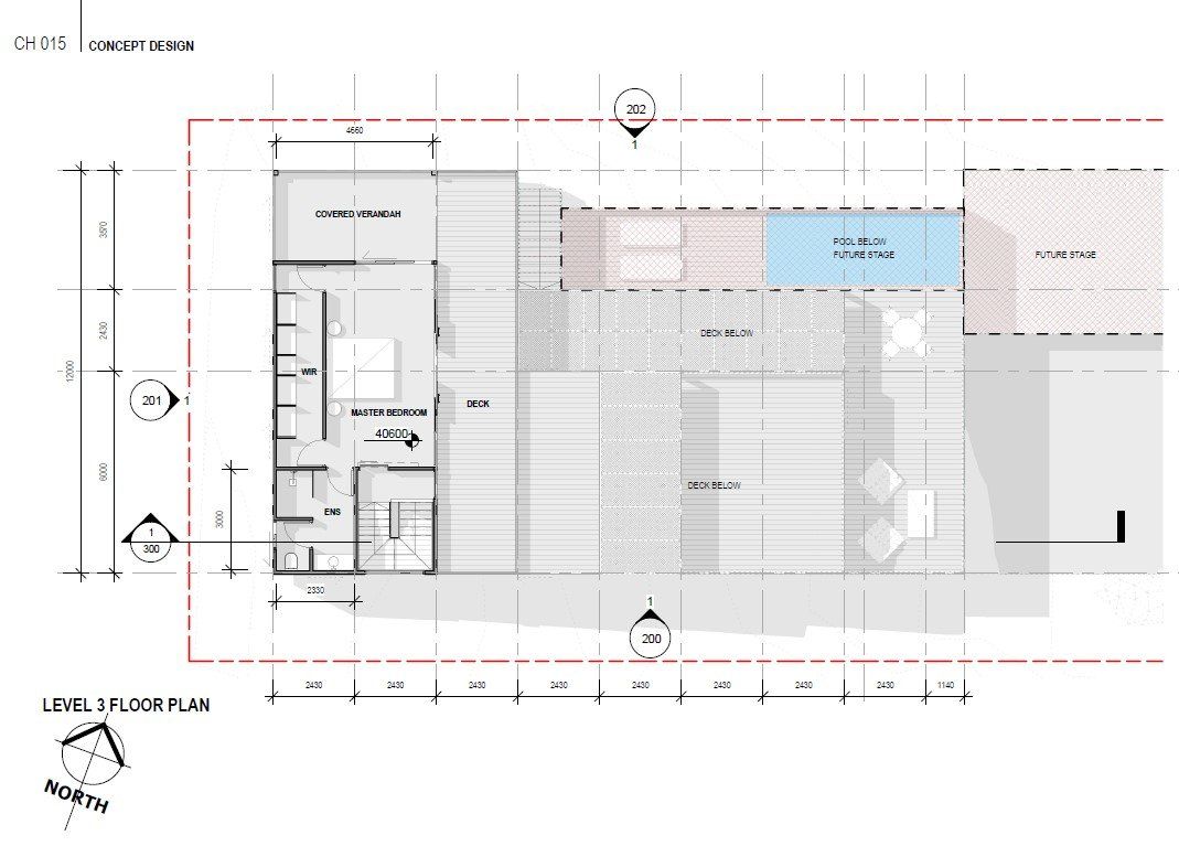
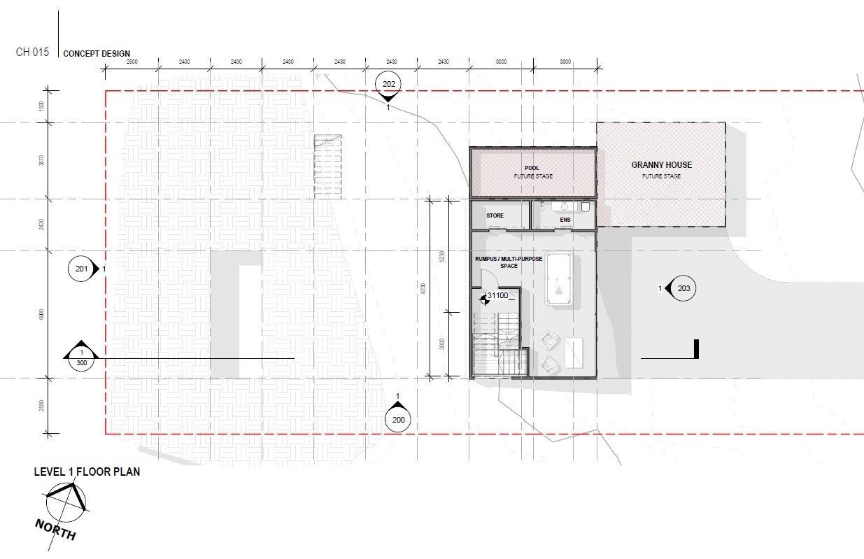
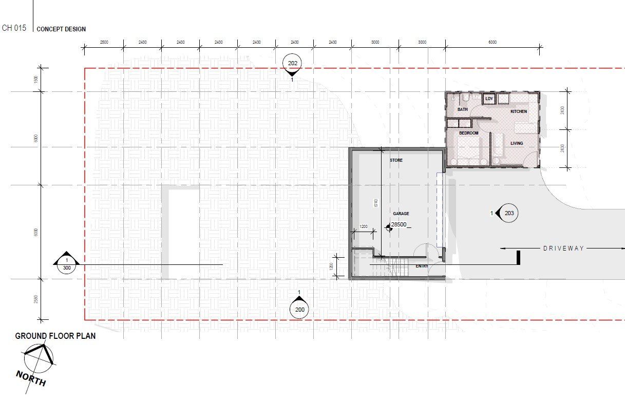
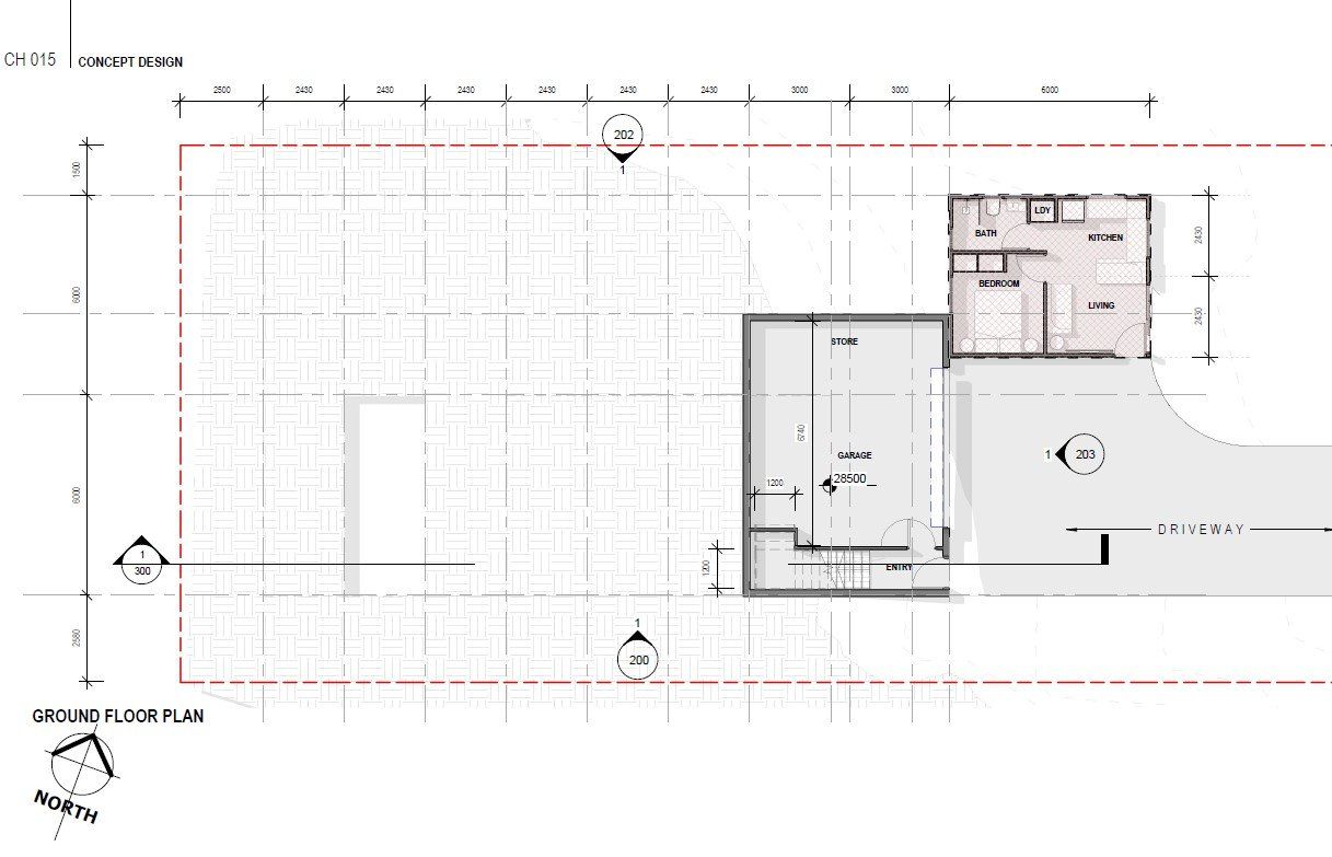
Designer Home on huge fall
Back to Projects

Our team work with you to achive the best results