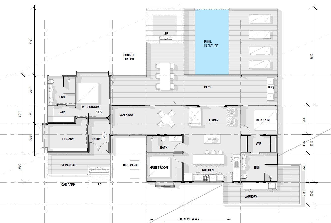
Margret River Smart Home
Back to Projects

smart home within 90 days from deposit to move into