Bendigo Vic
Back to Projects
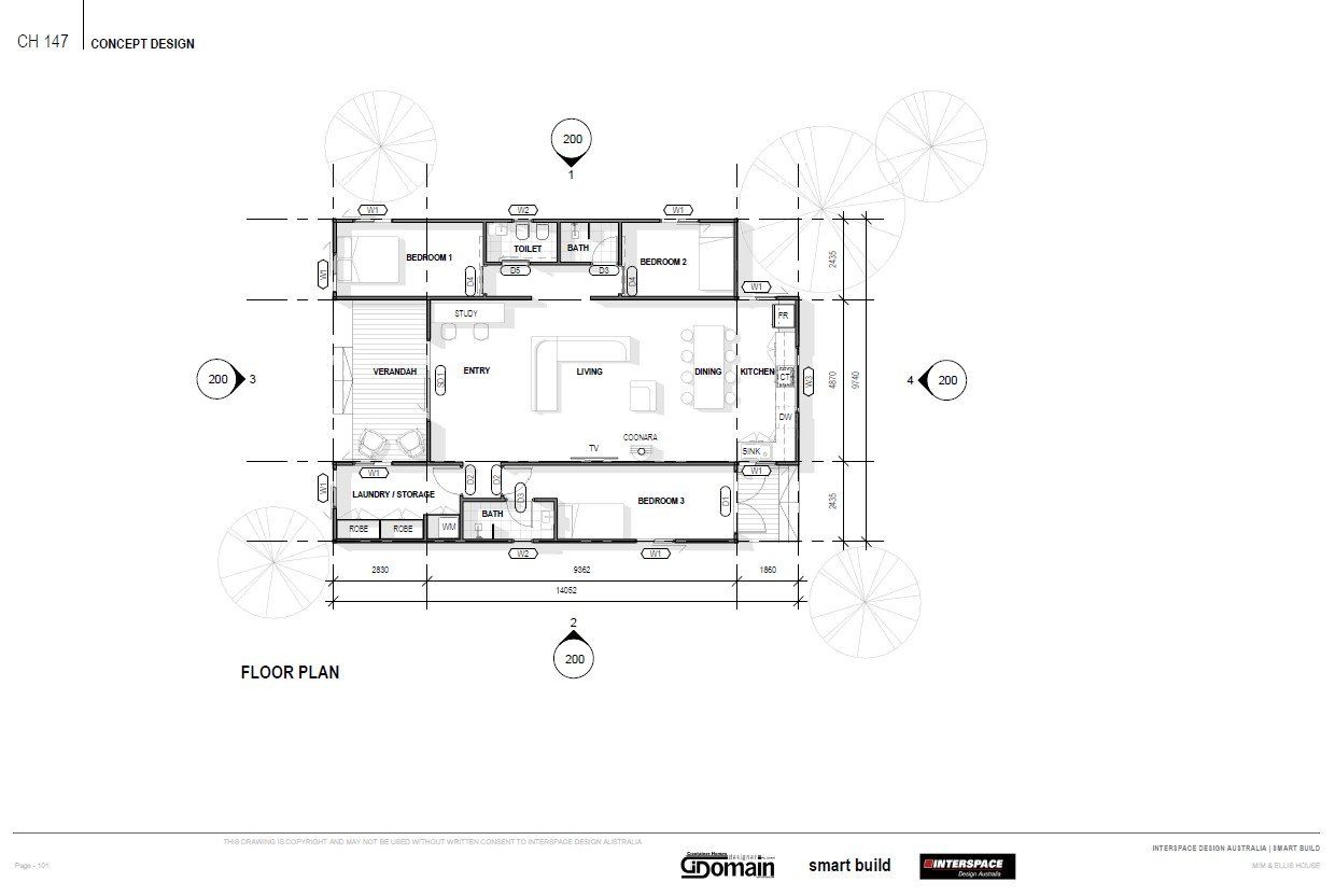
shells and all the materials needed to lockup stage, included windows pu insulation to all the internal walls framed ready to fit off.
shells and all the materials needed to lockup stage, included windows pu insulation to all the internal walls framed ready to fit off.

Container Homes
ABN: 61 152 992 099
PH: +61 02 9056 5028
Mobile: +61 0 434191600
Head Office: 81-83 Campbell St Surry Hills NSW 2010
1 Ginibi Drive Altona North Vic
Mail: PO BOX 880 ASHFIELD NSW 1800 Australia
Container Homes Designer Domain Pty. Limited.
TRADING AS:
LUXURY SHIPPING CONTAINER HOMES,
FOOD CARAVANS & RV MANUFACTURER, SHIPPING CONTAINER HOMES,
All Rights Reserved.
Designed By Jon Web Design