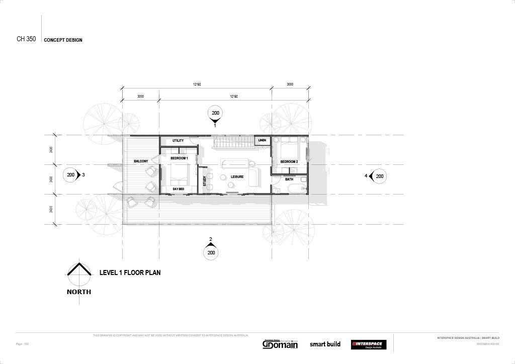
Tasmania 2 levels under construction for sale to any location
Back to Projects

For Sale