South Africa Beach House
Back to Projects
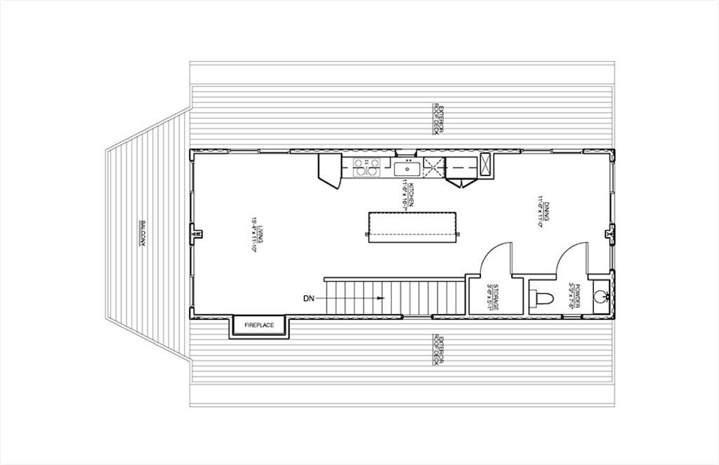
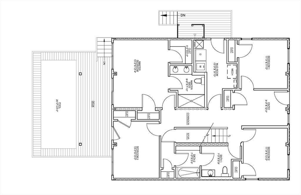
This lovely home gives you a lot of space and style for only $300,000 supplied
This lovely home gives you a lot of space and style for only $300,000 supplied

Container Homes
ABN: 61 152 992 099
PH: +61 02 9056 5028
Mobile: +61 0 434191600
Head Office: 81-83 Campbell St Surry Hills NSW 2010
1 Ginibi Drive Altona North Vic
Mail: PO BOX 880 ASHFIELD NSW 1800 Australia
Container Homes Designer Domain Pty. Limited.
TRADING AS:
LUXURY SHIPPING CONTAINER HOMES,
FOOD CARAVANS & RV MANUFACTURER, SHIPPING CONTAINER HOMES,
All Rights Reserved.
Designed By Jon Web Design